Beschreibung des Projekts
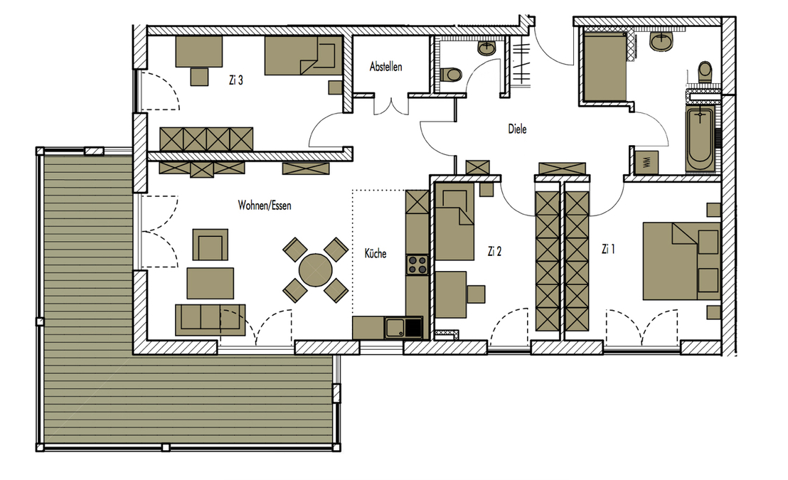
Die Neubauwohnung im Rahmen eines Bauträgerprojekts wurde bereits zum Zeitpunkt der Rohbauplanung auf die konkreten Wünsche und Bedürfnisse der Käufer angepasst und mit dem Bauträger abgestimmt, so dass bei der Übergabe alle Voraussetzungen hinsichtlich der Raumaufteilungen, der Boden- und Wandbeläge sowie der technischen Sanitär- und Elektroausstattung für den finalen Innenausbau gegeben waren. So wurde auf ein ursprünglich vorgesehenes drittes Zimmer verzichtet und dessen Fläche dem kombinierten Küchen-, Speise- und Wohnraum zugeschlagen. Die Küche wurde in diesen Bereich verschoben. Eine Abtrennung zwischen Diele und Hauptraum wurde zugunsten eines nahtlosen Übergangs aufgegeben und die Zugänge zu Abstellraum und Gäste-WC weg von der Flurwand auf die Schmalseiten verlegt, so dass die Flurseite als Galeriewand gestaltet und optisch dem Wohnraum zugeordnet werden konnte. Die beiden separaten Zimmer wurden als eigenständige Schlafräume, das eine mit Büro-, das andere mit Ankleideergänzung gestaltet. Im Badezimmer wurde die Position des WC-Beckens so verändert, dass ein Doppelwaschtisch Platz fand. Bei der Ausstattung wurde überwiegend mit bereits vorhandenen Möbeln, Teppichen und Leuchten gearbeitet. Neue Einbauten wie Küche und Garderobenschränke nehmen deren klassischen Stil auf und setzen gleichzeitig moderne Akzente.






















