Beschreibung des Projekts
Das Einfamilienhaus wurde im Erd-, Ober- und Dachgeschoss sowie zusätzlich im Treppenbereich des Untergeschosses vollständig umgebaut. Zentrales Element des Hauses ist die neue Treppe, die alle Geschosse verbindet und als extravaganter Treppenturm gestaltet ist. Schon beim Betreten des Hauses durch den neuen Hauseingang ist sie Blickfang in der Diele.
Im großen Wohnraum des Erdgeschosses sind alle Wohnfunktionen um den neuen Kamin herum angeordnet, der das Zentrum bildet. Der Eingang von der Diele aus wurde verbreitert und als doppelflügelige Glastüre ausgebildet. Die Trennwand zur Küche wurde entfernt und dadurch der Wintergarten, der zuvor wie ein Appendix an dieser Wand zu hängen schien, optisch aufgewertet. Die nun in den offenen Wohnraum integrierte Küche lässt sich durch eine Glasschiebetüre abtrennen. Die Kücheneinbauten führen bis in den Wintergarten hinein, in dem eine Theke mit Barhockern einen kommunikativen Treffpunkt schafft. Der Speisebereich schließt unmittelbar an. Der Wohnbereich mit seinen Loungemöbeln ist hinter dem Kamin angeordnet. Durch die großen Fenster ist der Außenbereich auch innen erlebbar.
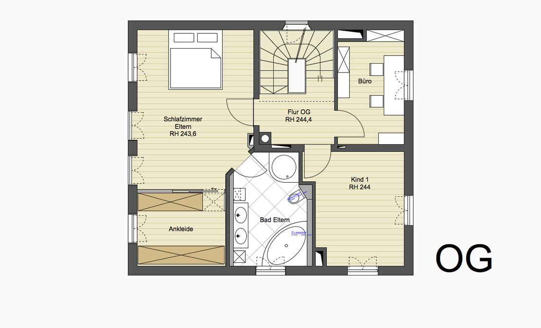
Im Oberschoss befinden sich der private Elternbereich, das Arbeitszimmer und ein Kinderzimmer. Das neue Schlafzimmer schließt über eine Schiebetüre an den separaten Ankleideraum an. Von hier aus gelangt man nahtlos in das Badezimmer. Durch das Entfernen einer zuvor schräg verlaufenden Wand wurde wesentlich mehr Großzügigkeit geschaffen. Im Dachgeschoss, welches zwei weitere Kinder- bzw. Jugendzimmer unterbringt, wurde ein Duschbad eingebaut. Alle Bäder, einschließlich Gäste-WC in der Diele, wurden einheitlich gestaltet. Die Sprache der neuen Innenarchitektur und des Interior Designs des Hauses wird konsequent in allen Räumen formuliert. Das Projekt wurde in allen Leistungsphasen der HOAI betreut.































