Beschreibung des Projekts
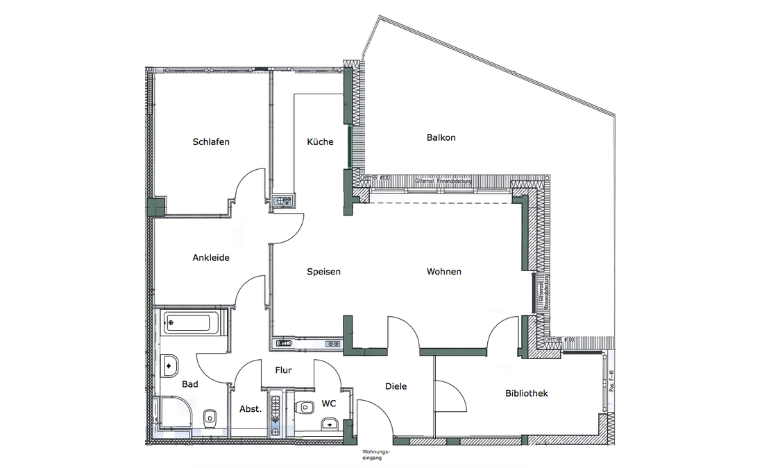
Die Wohnung entstand im Rahmen eines Neubauprojektes. Der vorgegebene Grundriss des Bauträgers wurde grundlegend überarbeitet und auf die Bedürfnisse der Bauherrin angepasst. Dabei wurden durch das Entfernen einer Trennwand das Schlafzimmer und die zuvor unbelichtete und als Durchgangsraum vorgesehene Ankleide zu einem großzügigen Schlaf- und Ankleideraum zusammengelegt. Durch das Schließen von zwei Verbindungstüren vom zentralen Hauptraum in den Schlafbereich und in das seitliche Arbeitszimmer erfuhr der Wohn- und Speisebereich eine deutliche Beruhigung. Gleichzeitig wurde dadurch Wandfläche für einen Einbauschrank geschaffen. Die offene Küche schließt nahtlos an diesen Bereich an. Die innenliegende Diele wird über eine satinierte Glasschiebetüre vom Arbeitszimmer und eine klare Glasschiebetüre vom Wohnraum aus mit Tageslicht versorgt. Badezimmer und Gäste-WC wurden in einer einheitlichen Material- und Formensprache umgesetzt, die das fein abgestimmte Farb- und Materialkonzept des Interior Design der Wohnung weiterführt.




















