Beschreibung des Projekts
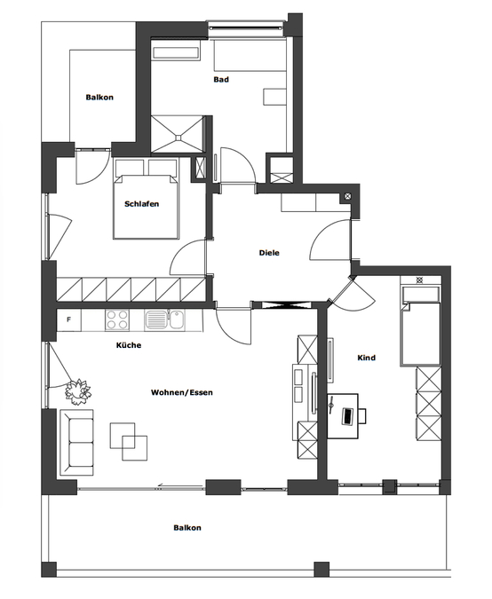
Die Planung des Innenausbaus der Neubauwohnung erfolgte bereits zum Zeitpunkt der Rohbauplanung des Bauträgers. So konnte rechtzeitig Einfluss auf die Lage von Fenster- und Türöffnungen sowie die Position von Sanitär- und Elektroanschlüssen genommen werden. Dies war in erster Linie für die Organisation des kombinierten Wohn-, Küchen- und Speiseraums notwendig, indem die Küchenanschlüsse, die zuvor in der Trennwand zum Schlafzimmer vorgesehen waren, in die Wand zum Arbeits- und Gästezimmer verlegt wurden. Dadurch konnten die Funktionen Kochen, Speisen und Wohnen eindeutig voneinander getrennt und dennoch raumbildend angeordnet werden: Aus der Küchenzeile, die als Einbau die gesamte Schmalseite des Hauptraums belegt, wurde eine farbig gefasste Abhangdecke mit Lichtvoute herausgeführt, die den anschließenden Speisebereich überdeckt. Ein halb hohes und frei im Raum stehendes Sideboard bildet den Übergang zum Wohnbereich und die Rückenlehne der gepolsterten Sitzbank am Esstisch. Die geschickte Anordnung von Einbauten und Möbeln sowie das fein abgestimmte Farb-, Material- und Beleuchtungskonzept der Innenarchitektur schaffen eine behagliche Atmosphäre und Großzügigkeit auf kleiner Fläche. In gleicher Weise erfolgten die Optimierung und Planung von Diele, Schlafzimmer, Badezimmer sowie Arbeits- und Gästezimmer.

























