Beschreibung des Projekts
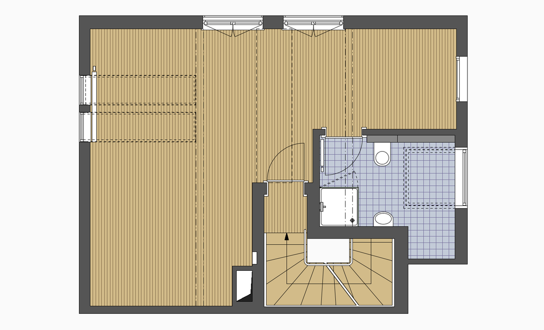
Das Dachgeschoss einer Doppelhaushälfte in München wurde zu einem Schlafzimmer mit Ankleidebereich und einem Wellnessbad umgebaut. Dafür wurde der Zugang vom Treppenraum sowie die generelle Aufteilung der Grundrissfläche durch Wandabbrüche und neue Wände grundlegend geändert. Der Entwurf berücksichtigt den Wunsch der Kunden, für eine begrenzte Zeit einen Home-Office-Arbeitsplatz zu integrieren. Dieser wurde zunächst an der Stelle positioniert, an der final der Schlafbereich angeordnet ist. Das Bett wiederum befindet sich vorerst im zukünftigen Ankleidebereich. Um die endgültige Situation des Schlafzimmers herzustellen, wird das zerlegbare Sideboard, dass quer auf einem Lowboard am Kniestock aufliegt, spiegelverkehrt ummontiert und in Richtung Kleiderschrank verschoben, um mit diesem den Ankleidebereich zu bilden, während das Bett unter das Dachfenster rückt. Eine doppelflügelige Schiebetür führt von hier aus in das atmosphärische Wellnessbad mit einer maßgefertigten Sauna und einer optisch freistehenden Badewanne.
























