Beschreibung des Projekts
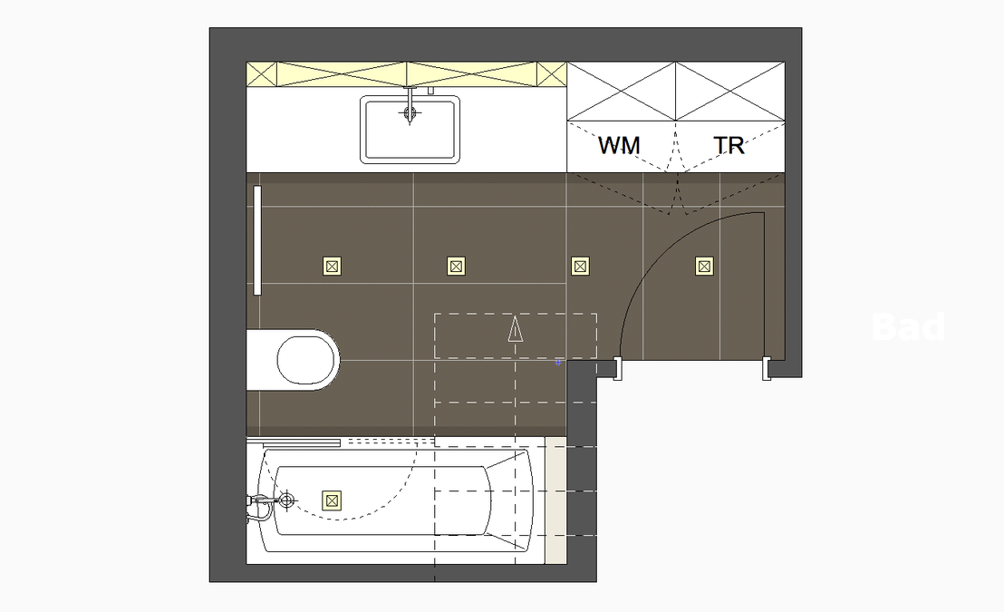
In einer doppelgeschossigen Wohnung ist das Raumvolumen des Bades teilweise durch die innen liegende Treppe eingeschränkt. Um die Fläche zu optimieren, wurde die Kopfseite der Badewanne im niedrigen Bereich positioniert. Auf der Fußseite wird die größere Raumhöhe für eine Dusche mit Glasabtrennung genutzt. Der Waschtisch mit Deckplatte und Becken in einem Stück ist mit Holzschüben versehen, der seitliche Stauschrank bringt Waschmaschine und Trockner von außen unsichtbar unter.



